Appartement 2 chambres avec cave et balcon proche du centre

Venez découvrir cet appartement idéalement situé, en plein centre de Soignies, proche des commerces et transports en commun dans une rue peu fréquentée.
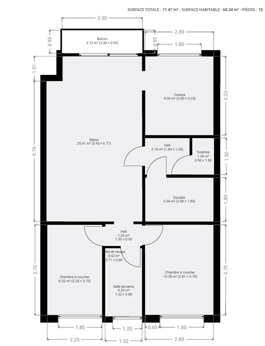
Ce confortable appartement de +-70 m² se trouve au 2ième étage d’une résidence sans ascenseur d'un petit immeuble, comprenant 3 étages au total.
La petite copropriété et l'absence d'ascenseur permettent d'avoir peu de frais (fond de roulement : 65€) ce qui est un atout majeur.
Il se compose d’un hall d’entrée, d’un agréable séjour comprenant un salon et une salle à manger qui accueillent la lumière durant l'après-midi, d’une cuisine attenante, de deux chambres, d’une salle de bain qui sépare les chambres, d’un WC séparé ainsi que d’un débarras pratique. Un balcon de 3m² complète l’ensemble.
Au sous-sol vous profiterez d’une cave de 6m².
L’appartement est équipé de châssis double vitrage et d’une toute nouvelle chaudière central au gaz de ville datant de début 2025. Il présente de bonnes performances énergétiques avec un PEB C (192 kWh/m².an), garantissant confort et maîtrise des consommations. Et une installation électrique conforme.
L’atout majeur de ce bien réside dans le très bon entretien du bâtiment et sa toiture refaite en 2024.
Prix indicatif: 195.000€, sous réserve d'acceptation des propriétaires.
Pour toute demande de visite ou de renseignement: laura@leemans-immobilier.be
Descriptif non contractuel.
Général
- Référence : 7276029
- Catégorie : Appartement
- Meublé : Non
- Nombre de chambres : 2
- Nombre de salles de bains : 1
- Jardin :Non
- Garage :Non
- Terrasse :Oui
- Parking :Non
- Surface habitable : 77m²
- Surface du terrain : 90m²
- Disponibilité :à l'acte
- Loué : Non
- Revenu cadastral (€) : 835 €
Extérieur
- Année de construction : 1976
- Surface de terrasse 1 : 3 m²
Environs
- Magasins : Oui
- Ecoles : Oui
- Transports en commun : Oui
- Centre sportif : Oui
Énergie
- Label peb : C
- Peb e-spec (kwh/m²/an) : 192
- Emission co2 : 35
- E total : 14685 kWh/an
- Peb code unique : 20251011004472
- Peb valide jusqu'au : 10/11/2035 00:00
- Date du peb : 10/11/2025 00:00
Localisation
Adresse : Rue Grégoire Wincqz 151, 7060 Soignies