TROP TARD- Maison de Maître 4 chambres, jardin et garage

Venez découvrir cette belle maison de maître rénovée il y a peu, un véritable havre de paix situé au calme dans la campagne de Neufvilles à 8 min de Soignies, 15min de Mons et 10min du Shape.
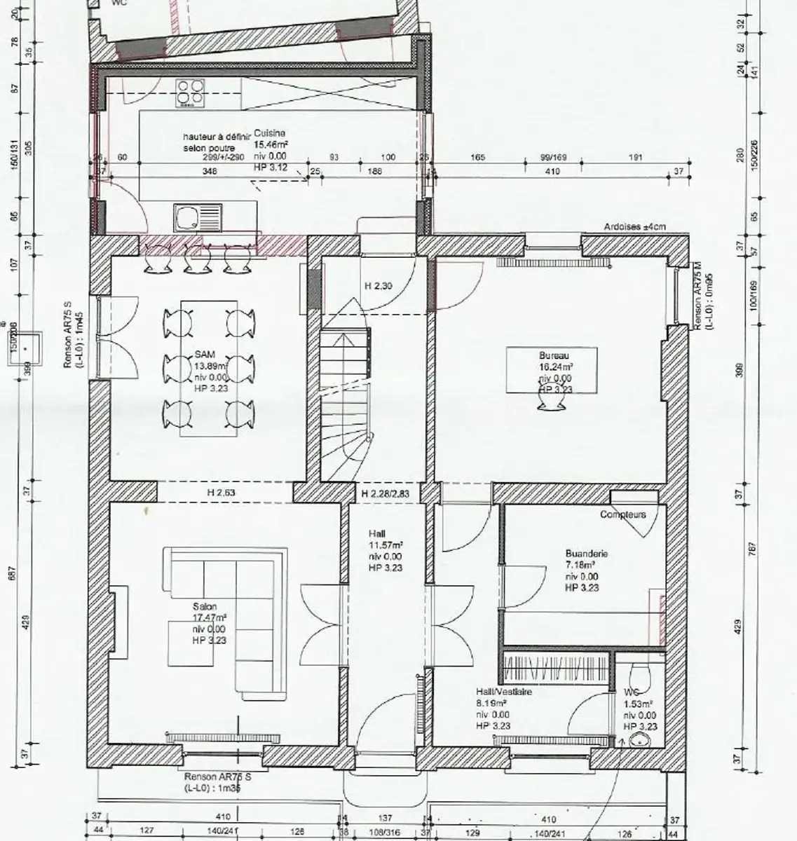
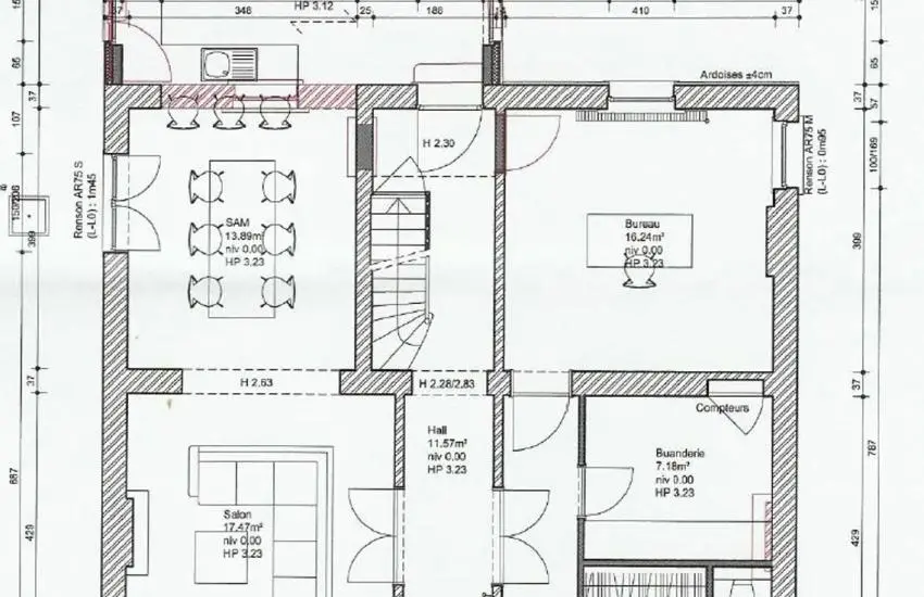
Elle se compose comme suit : au rez-de-chaussée : Un hall d'entrée, un vaste salon, une salle à manger, une cuisine équipée, un WC séparé, une buanderie et un bureau de 16m².
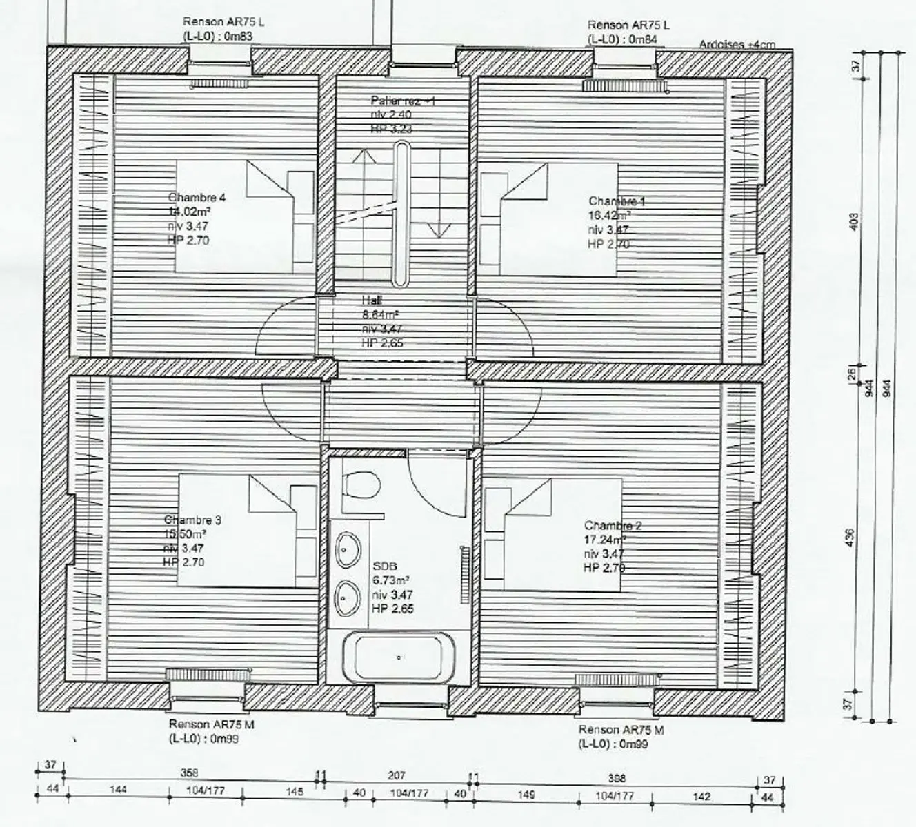
A l'étage : 4 chambres de 17, 16, 15 et 14m², une salle de bains avec baignoire et douche, un WC et meubles de rangement. Un garage, un grenier et une cave complètent ce bien. Profitez également d'un grand jardin tout à fait emmuré.
D'un point de vue technique: Châssis en PVC double vitrage, chauffage central au mazout.
Disponibilité au 1er juillet . Description et plans non contractuels.
Les visites ont lieu ce samedi 25/05.
Une information ou une demande de visite? mathilde@leemans-immobilier.be ou 067/77.31.27
Général
- Référence : 5994787
- Catégorie : Maison
- Meublé : Non
- Nombre de chambres : 4
- Nombre de salles de bains : 1
- Jardin :Oui
- Surface du jardin :0m²
- Garage :Oui
- Terrasse :Oui
- Parking :Oui
- Surface habitable : 222m²
- Disponibilité :à convenir
Extérieur
- Année de construction : 1900
- Parking intérieur : Oui
- Parking extérieur : Oui
- Année de rénovation : 2015
- Centrale tél. : Oui
- Châssis : Pvc
- Parking(s) intérieur : 1
- Parking(s) extérieur : 3
Énergie
- Peb e-spec (kwh/m²/an) : 393
- E total : 87151 kWh/an
- Peb code unique : 2014122018309
- Peb valide jusqu'au : 12/22/2024 00:00
- Date du peb : 12/22/2014 00:00
Localisation
Adresse : Rue Reine de Hongrie 78, 7060 Soignies