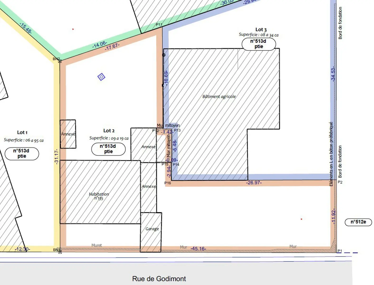
Maison 5 chambres avec entrepôt à vendre

Venez découvrir cette belle maison de caractère, à rénover, ainsi que son entrepôt situé à Chaussée-Notre-Dame-Louvignies.
La maison se compose comme suit:
Rez-de-chaussée : Un hall d'entrée, une salle à manger, un salon, un bureau, un séjour, une cuisine équipée, un WC séparé, une salle de bain et une arrière cuisine.
Au 1er étage : Un hall de nuit, 5 chambres.
Un grenier aménageable de 130 m², une grande cave, une terrasse et un garage complètent ce bien.
La toiture est en excellent état, et offre la possibilité d'être isolée par l'intérieur grâce à sa sous-toiture.
D'un point de vue technique : Chauffage central au mazout, châssis aluminium simple vitrage.
L'entrepôt présente une surface d'environ 380 m², dont une partie fermée et l'autre semi-ouverte.
Faire offre àpd. 290.000€, sous réserve d'acceptation des propriétaires.
Vous avez un coup de cœur et désirez une visite ? N'hésitez plus et contactez nous à l'adresse: info@leemans-immobilier.be
Annonce non contractuelle, les informations sont données à titre indicatif.
Général
- Référence : 6697227
- Catégorie : Maison
- Meublé : Non
- Nombre de chambres : 5
- Nombre de salles de bains : 1
- Jardin :Non
- Garage :Oui
- Terrasse :Oui
- Parking :Non
- Surface habitable : 241m²
- Disponibilité :à l'acte
- Sous régime tva : Non
- Loué : Non
Extérieur
- Année de construction : 1918
- Nombre de garage : 1
- Châssis : Aluminium
Énergie
- Label peb : G
- Peb e-spec (kwh/m²/an) : 568
- Emission co2 : 141
- Peb code unique : 20250402005060
- Peb valide jusqu'au : 04/02/2035 00:00
- Date du peb : 04/02/2025 00:00
Localisation
Adresse : Rue Godimont 135, 7063 Soignies