Maison de 180 m², 4 ch avec jardin et garage sur Soignies

Venez découvrir cette belle maison lumineuse, avec ses 4 chambres et ses beaux volumes, située sur Soignies à 5 minutes à pied de la gare !
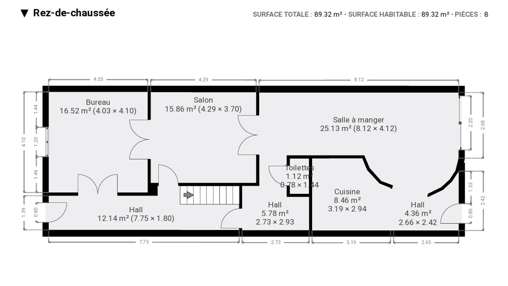
Composition et espaces de vie :
Au rez-de-chaussée, vous retrouverez un hall d'entrée, un grand bureau, un salon avec de belles portes vitrées taillées et dessinées sur mesure, une salle à manger lumineuse donnant sur le deuxième salon, une cuisine équipée, et une toilette séparée.
Le premier étage comprend une salle de bain récente avec douche italienne, double vasque et une toilette.
Le deuxième étage comprend 3 belles chambres.
Le troisième étage comprend une chambre parentale avec dressing et espace de stockage ainsi qu'un étage avec mezzanine donnant vue sur la collégiale !
La maison dispose également d’une grande cave , d'une serre et d'un abri de jardin en bois.
D'un point de vue technique :
– Chauffage central mazout
– Châssis bois double vitrage
– PEB D (337 kWh/m².an)
– Electricité conforme
Atouts de l'habitation : Un grand jardin qui permet de profiter des beaux jours et son garage fermé en plein centre-ville.
RC non indexé: 802€.
Descriptif non contractuel.
Général
- Référence : 7617032
- Catégorie : Maison
- Meublé : Non
- Nombre de chambres : 4
- Nombre de salles de bains : 1
- Jardin :Oui
- Surface du jardin :0m²
- Garage :Oui
- Terrasse :Oui
- Parking :Non
- Surface habitable : 180m²
- Surface du terrain : 350m²
- Disponibilité :à l'acte
- Loué : Non
- Revenu cadastral (€) : 802 €
Extérieur
- Nombre de garage : 1
- Parking intérieur : Oui
- Parking extérieur : Non
- Châssis : Bois
Localisation
Adresse : Rue du Nouveau Monde 12, 7060 Soignies
Ce site utilise des cookies
Nous utilisons des cookies pour assurer le bon fonctionnement du site. Vous pouvez consulter nos mentions légales et notre politique de confidentialité pour plus d'informations.