Studio coup de cœur situé au rdc avec jardin privatif

Venez découvrir ce studio en très bon état, situé rue César 1A à Bois d’Haine, dans une rue calme et à proximité de toutes les commodités (écoles, magasins, hôpitaux, transports en commun, accès autoroute, sentier promenade, etc.).
Ce studio lumineux est idéal pour un premier achat, un investissement ou pour toute personne recherchant un logement confortable dans un environnement paisible et pratique.
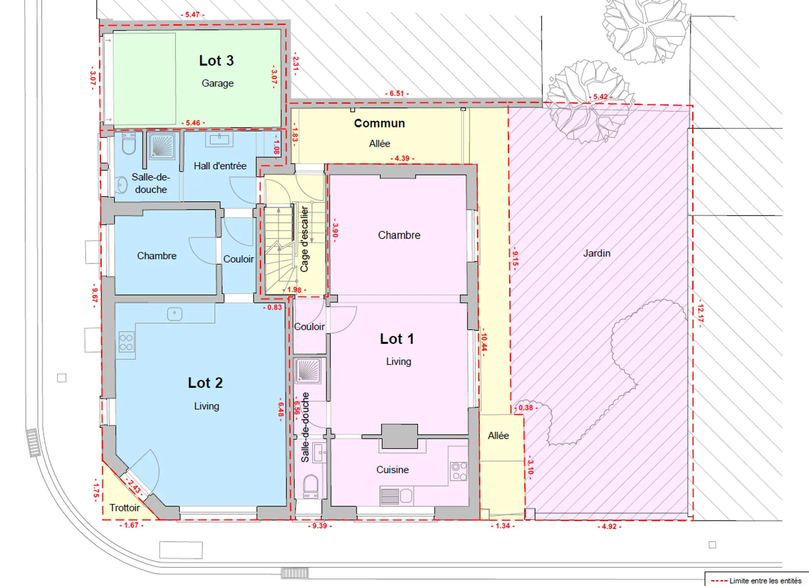
Sa superficie est de 53m² selon PEB et il dispose d’un jardin privatif, d’une cave carrelée, ainsi que d’un compteur électrique individuel. Il se trouve au rez-de-chaussée d'un bâtiment comprenant seulement quatre appartements et sans ascenseur, ce qui garantit une atmosphère sereine et des frais réduits.
L'installation électrique est conforme, le PEB est de niveau E, et la chaudière collective récente assure un chauffage efficace et fiable. Châssis pvc double vitrage. L'ensemble de l'immeuble est aux normes pompiers et chaque appartement est équipé d'une porte coupe-feu. Le studio est également équipé d'un parlophone.
Ce bien offre un cadre de vie agréable, sans travaux à prévoir, et une rare opportunité de profiter d’un espace extérieur privatif dans un studio.
Il s'agit de l'appartement et du jardin sous teinte rose (lot 1) sur le plan repris dans les photos.
Faire offre à partir de 95.000€ sous réserve d'acceptation des propriétaires.
Informations et visites : contactez Benjamin au 0479/76.89.19 ou via benjamin@leemans-immobilier.be
Descriptif non contractuel.
Général
- Référence : 7282015
- Catégorie : Studio
- Meublé : Non
- Nombre de chambres : 1
- Nombre de salles de bains : 1
- Jardin :Oui
- Surface du jardin :64m²
- Garage :Non
- Terrasse :Non
- Parking :Non
- Surface habitable : 53m²
- Disponibilité :à l'acte
Extérieur
- Châssis : Pvc
Environs
- Magasins : Oui
- Ecoles : Oui
- Transports en commun : Oui
- Centre sportif : Oui
- Autoroute : Oui
Énergie
- Label peb : E
- Peb e-spec (kwh/m²/an) : 388
- Emission co2 : 72
- E total : 20529 kWh/an
- Peb code unique : 20240425025043
- Peb valide jusqu'au : 04/25/2034 00:00
- Date du peb : 04/25/2024 00:00
Localisation
Adresse : Rue César 1A, 7170 Manage-Bois-d'Haine